ACERCA DE ABC
EL EQUIPO
PROYECTOS
OBRAS
DESARROLLOS INMOBILIARIOS
ACERCA DE ABC
EL EQUIPO
PROYECTOS
OBRAS
DESARROLLOS INMOBILIARIOS
DESARROLLOS
MENDOZA
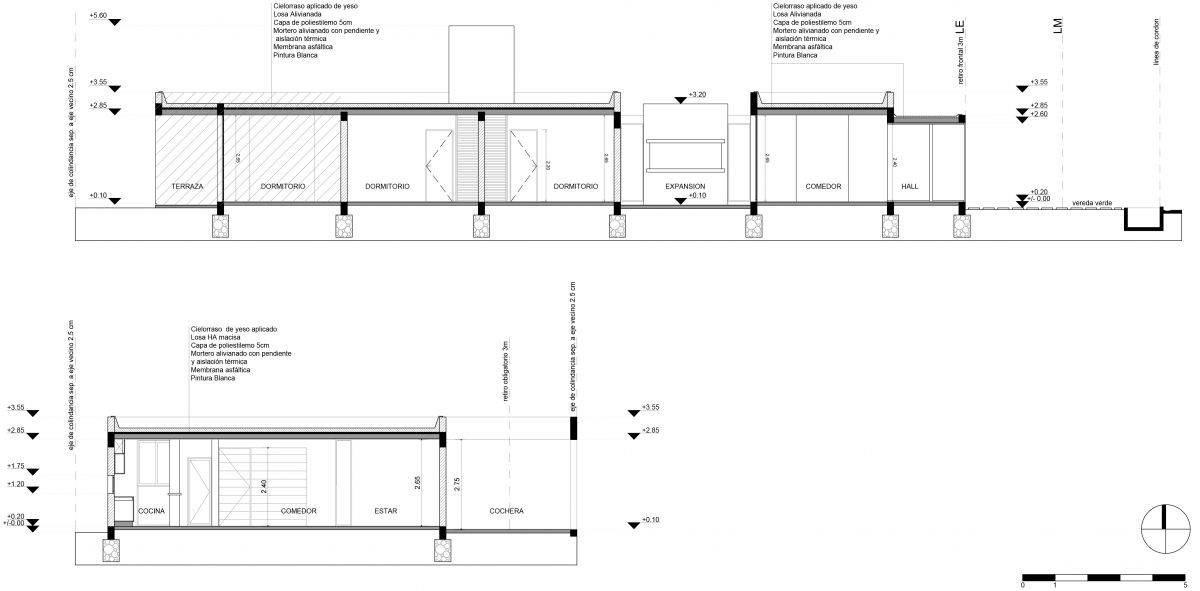
16 - Casa Inversión Vieytes
Volver a desarrollo "MENDOZA"
Desarrollado por ARKANTIR | Comunicación de Marcas